Skip links

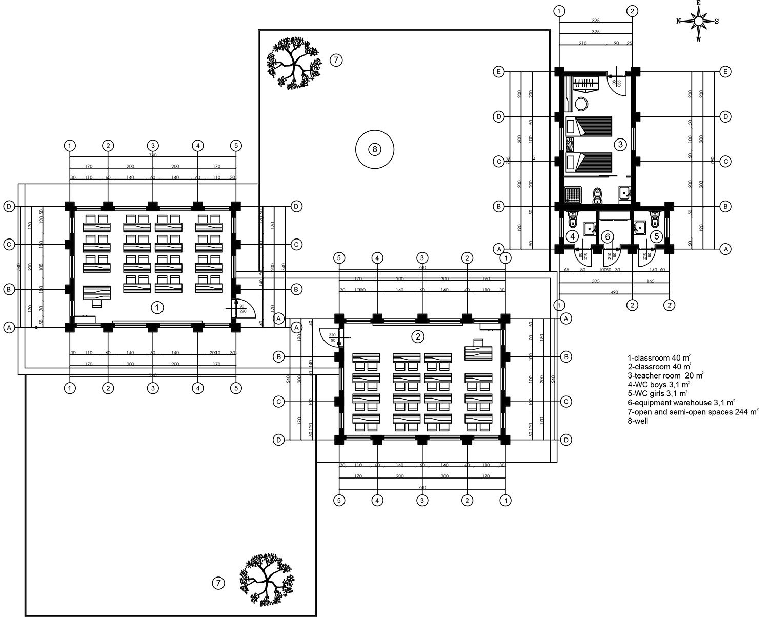
School for African Children in Somalia

Client: Competition Project

Year: 2015

Built Area: 1,200 m2

Status: Concept

Location: Somalia

Explore
Drag